一、项目基本情况
原公告的采购项目名称:绍兴柯桥江滨水处理有限公司活动板房采购项目(第二次)
首次公告日期:2022年10月18日
二、更正信息
更正内容:对绍兴柯桥江滨水处理有限公司活动板房采购项目(第二次)招标文件作如下补充说明及调整:
1、补充技术要求;详见附件1。
2、投标截止时间及开标时间调整为:2022年11月1日下午15时00分;
3、投标文件递交方式及要求:投标人应于2022年11月1日上午12时整之前将投标文件密封以邮寄(建议采用EMS或者顺丰)的方式送达至浙江越锋项目管理有限公司,收件人:冯青芝,联系电话:17858520805,邮政编码:312030,请寄件人在邮件外包装注明投标项目名称,投标人名称,被授权人姓名及联系电话, 邮寄以签收时间为准, 逾期送达或未按照招标文件要求密封将予以拒收(或作无效标处理)。邮寄过程中投标文件产生任何破损,由投标单位自行承担风险。
也可现场递交标书,投标人应于2022年11月1日下午15时整之前将投标文件送达至绍兴柯桥江滨水处理有限公司三楼一号会议室。现场递交给招标人签字确认,应即交即走。
招标单位:绍兴柯桥江滨水处理有限公司
2022年10月27日
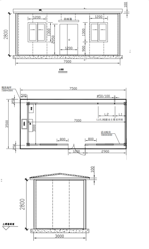
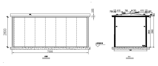
附件1:补充活动板房图纸及相关配置要求



材料清单 | |||||
序号 | 类别 | 内容 | 材料名称/规格/材质 | 备注 | |
房体 | 1 | 墙体及室内顶板 | 100EPS(钢板厚度外0.8/内0.5) | ||
2 | 不锈钢防盗门 | 子母防盗门1200*2050 | |||
3 | 防雨棚 | 1500*600 | |||
4 | 机房地面 | 600*600防滑地砖 | |||
5 | 机房框架 | 铝合金立柱框架 | |||
6 | 钢结构龙骨 | ||||
7 | 吊顶 | 轻钢龙骨铝合金扣板 | |||
8 | 窗户 | 铝合金窗 | |||
二 | 美化装饰 | 1 | 双面坡屋顶框架 | 热镀锌钢结构框架 | |
2 | 双面坡美化屋顶 | 彩钢琥璃瓦 | |||
三 | 接地系扰 | 1 | 接地母线 | 4*40热镀使锌扇帐 | |
四 |
厥明系统 | 1 | 亮灯 | 60W,LED吸顶灯3盏 | |
2 | 开关 | 照明开关3开 | |||
3 | 五孔抽座 | ||||
4 | 线缆、线槽等 | ||||
五 | 电幕分 | 1 | 空调插座 | 带防雷器空开 | |
2 | 配电籍 | 设备5、空调、照明、插座 | 8路空开 | ||
六 | 其他 | 1 | 侧面开孔 | 数个,甲方现场指导,要带套管,和封泥 | |
更正日期:2022年10月27日
三、其他补充事宜
无。
四、对本次采购提出询问,请按以下方式联系。
招标人名称:绍兴柯桥江滨水处理有限公司
详细地点:绍兴市柯桥滨海工业区兴滨路北十一路口
联 系 人:蒋涛
联系电话:15657580076
传真:0575-85628972
招标代理名称:浙江越锋项目管理有限公司
详细地点:柯桥湖西路1176号(现代大厦2幢)
联 系 人:冯青芝
联系电话:0575-81183399
传真:0575-85560088
监督管理部门:绍兴柯桥江滨水处理有限公司纪检组
联系人:周先生
监督投诉电话:0575-85628981